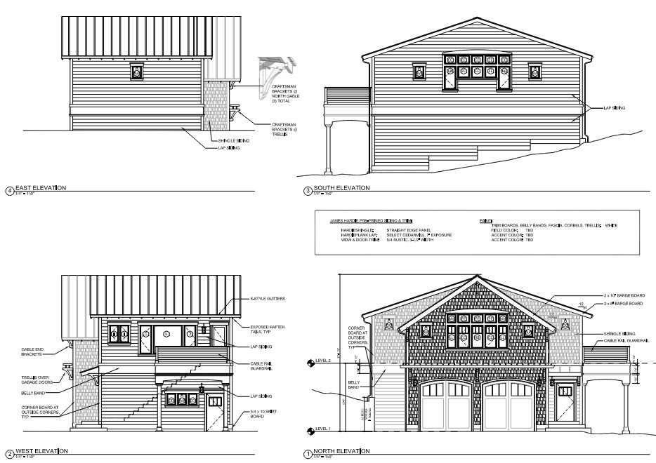
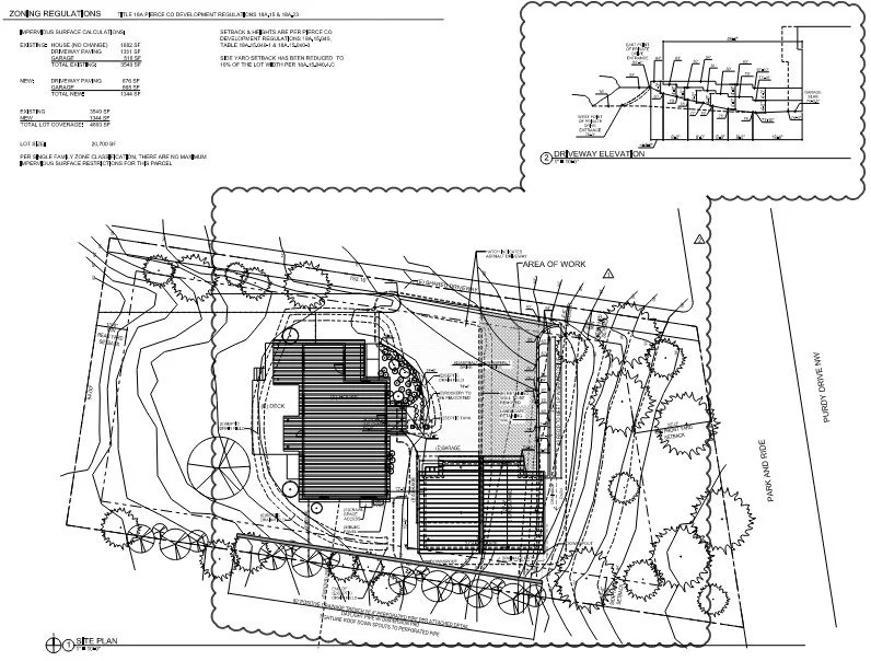
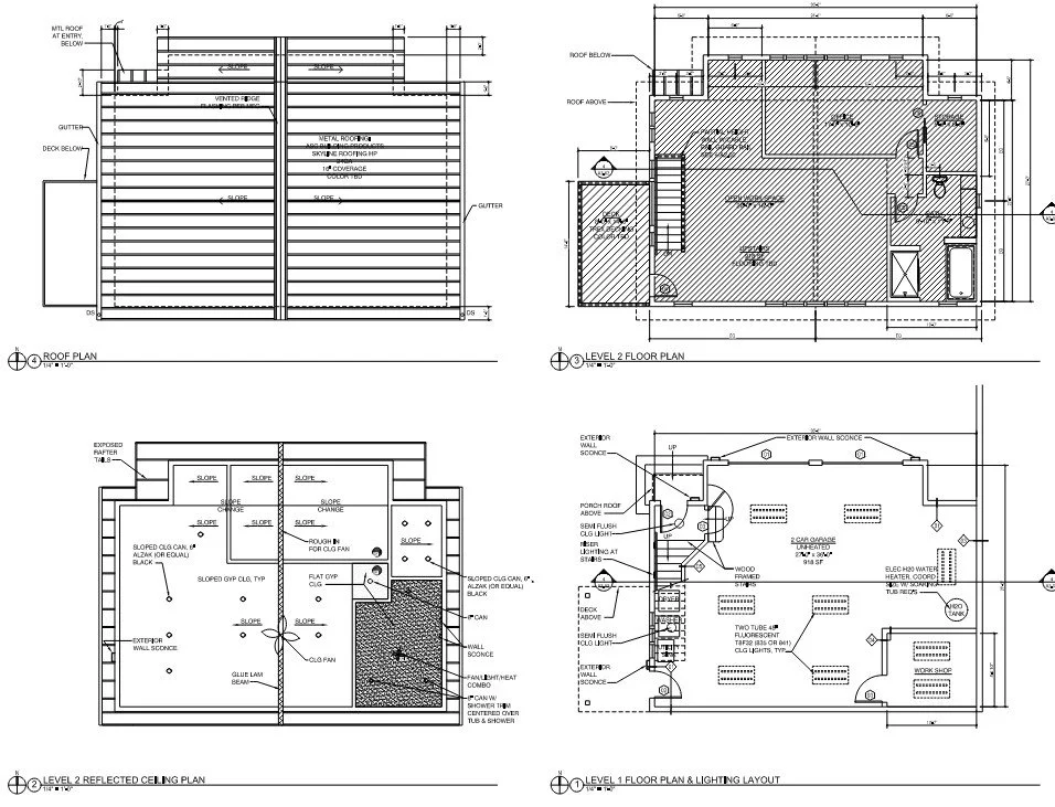
Gig Harbor New Build: garage with “hobby” space